賃料 |
7.3万円 |
共益費/管理費 |
- |
|---|---|---|---|
敷金 |
2ヶ月 |
礼金 |
1ヶ月 |
保証金 |
- |
敷引_償却 |
- |
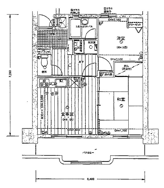
間取り |
2DK |
築年月 |
1991/07(築34年) |
面積 |
45.36m²(13.72坪) |
階建 |
5階/14階建 |
所在地 |
前橋市千代田町2丁目 |
||
周辺環境 |
JR前橋駅まで 徒歩16分 1,200m |
お電話でのお問い合わせ
物件番号:1348
お電話でお問い合わせの際は、物件番号をお伝えください。
027-223-5133
営業時間:AM9:30~PM6:00 AM10:00~PM6:00(日・祝祭日)
定休日:毎週 水曜日
ポイント
POINT
5階空き! 分譲マンションの賃貸! 希少な街ナカ物件! 官公庁近く! 飲食店街も近いので歩いて飲みに行けます♪
オートロック! 管理人日勤!
家計にやさしい都市ガスッ!
◆◆◆◆◆◆ショッピング◆◆◆◆◆◆
マルエドラッグ前橋プラザ元気21店まで徒歩7分(約500m) コンビニ、セブン-イレブン前橋日吉町1丁目店まで徒歩7分(約600m) スーパー、フレッセイクラシード若宮まで徒歩9分(約650m)
◆◆◆◆◆◆教育・学校・公園◆◆◆◆◆◆
前橋市役所まで徒歩17分(約1.3㎞)
物件詳細DETAIL
建物構造 |
鉄骨鉄筋コンクリート造 |
向き |
南東 |
|---|---|---|---|
現況 |
空室 |
入居時期 |
即時 |
間取詳細 |
DK8.1、洋4.5、和6 |
総戸数 |
- |
保険等 |
有 18,000円 2年 |
保証会社 |
必須 初回保証料:総賃料の60%、毎月:月額総賃料の1.5%、2年毎の更新時保証料:10,000円+更新時請求額の1.5% |
契約期間 |
2年 |
更新料 |
1ヶ月+更新事務手数料22,000円 |
取引態様 |
仲介 |
仲介手数料 |
1.1ヶ月 |
駐車場 |
近隣(空き要確認) |
学区 |
桃井小学校
第一中学校 |
諸費用 |
24時間安心サポート(月額) 1,430円 |
入居費用(概算) |
399,760円 |
特色/設備 |
二階以上、バストイレ別、室内洗濯機置場、システムキッチン、バルコニー、オートロック、駐輪場、管理人常駐、エアコン、エレベーター、都市ガス |
||
情報更新日 |
2025年10月27日 |
次回更新予定日 |
2025年10月28日 |
※掲載されている物件データが現状と異なる場合は現状を優先します。
周辺地図MAP
有限会社 アール・イー・ビーCOMPANY
所在地 |
群馬県前橋市表町二丁目25番15号 |
||
|---|---|---|---|
免許番号 |
群馬県知事免許(8)第5155号 |
||
会員 |
一般社団法人 群馬県宅地建物取引業協会
|
||
電話番号 |
027-223-5133 |
FAX番号 |
027-243-5773 |
営業時間 |
AM9:30~PM6:00 AM10:00~PM6:00(日・祝祭日) |
定休日 |
毎週 水曜日 |

